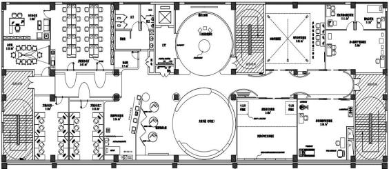
一、整体平面设计
     
   
    
   
 二、各区域实照及功能介绍
 1.走廊
                        
 北面观                               南面观
 
 2.各区域
                        
 (1)太极拳
 文化感应互动区
 功能:通过文图、动画和视频方式提供符合标准的太极拳理论知识学 习,展示陈氏太极拳文化背景、传承与传播。
 
                        
 (2)太极拳沙龙区
 功能:太极拳文化与技术交流、座谈、学术研讨、太极拳影音拍摄等
                        
 (3)太极拳视频模拟评分系统
 功能:通过文图、动画和视频方式展示陈氏太极拳标准招式和套路, 供使用者观摩、学习和模拟评分。
 
 
                        
 (4)太极拳文创室区
 功能:文化、创意转化和产品形成三层面进行太极拳文创产品的建设、 包装和传播推广。
                        
 
 (5)太极拳虚拟仿真实验室
 功能:
 a.采用惯性动作捕捉系统实时快速采集太极拳动作姿态,结合面部表情和手 势捕捉,对人体运动进行追踪、检测、捕捉并记录,通过对捕捉的三维数据进行 分析,能够获得在不同时刻下人体运动姿态的不同特征,建立太极拳动作标准数 据库,为太极拳数字化国家标准制定建立提供数据基础。
 b.通过构建太极拳元宇宙三维场景,打造名师虚拟数字人形象,搭建一个沉 浸式虚拟现实交互展示系统,为太极文化的传播、展演和推广提供一个逼真的、 三维的、沉浸式的人机交互的展演平台。
 c.搭建太极拳虚拟仿真平台教学和实训平台,实现太极拳理论知识学习、太 极拳标准招式展示、太极拳 VR 互动教学、太极拳招式练习及考核等模块功能, 改善太极拳教学的方法和手段,弥补教学资源制作技术上的不足,推进太极拳体 育教育的信息化和数字化。该套设备功能以虚拟现实技术和人体运动仿真技术为 核心,通过实时的对人体运动进行追踪、检测、捕捉并记录,通过对捕捉的三维 数据进行分析,能够获得在不同时刻下人体运动姿态的不同特征。
                        
 (6)太极拳生物力学实验室
 功能:利用红外动作捕捉系统、三维测力平台系统、足底压力测量系统等运 动生物力学评估设备,可进行太极拳运动学、动力学、足底压力、平衡和肌肉活 动等各种运动生物力学评估、分析和研究。
                        
 
 (7)太极拳机能评定实验室
 功能:运用运动健康促进基础理论知识体系与实验方法,量化分析太 极拳运动的技术特征与健身机理的影响,探究太极拳健身机理机制及 太极拳运动基本标准,为太极拳的弘扬和推广提供理论、技术及实验 数据支撑。
                        
 (8)太极拳身心健康干预实验室
 功能:以“数据驱动、虚实融合、精准干预 ”为核心理念,运用身心  健康评估基础理论体系与实验方法,定量和定性分析太极拳运动干预  身心健康的机理机制,聚焦太极拳对身心健康的科学研究与应用转化, 构建多模态监测、智能分析与个性化干预的创新平台。探索太极拳运  动促进身心健康的科学化、合理化标准,为太极拳运动干预身心健康  的传播与推广提供实验依据。